Public invited to hear update on Plante’s Ferry Comprehensive Master Plan on September 27 meeting
Plante’s Ferry Sports Complex field and park users, neighbors, visitors, and community members are invited to hear an update and provide input on a draft Comprehensive Master Plan at a public meeting from 5:30-7:30 p.m., Wed., Sept. 27 at CenterPlace Regional Event Center Auditorium, 2426 N. Discovery Place.
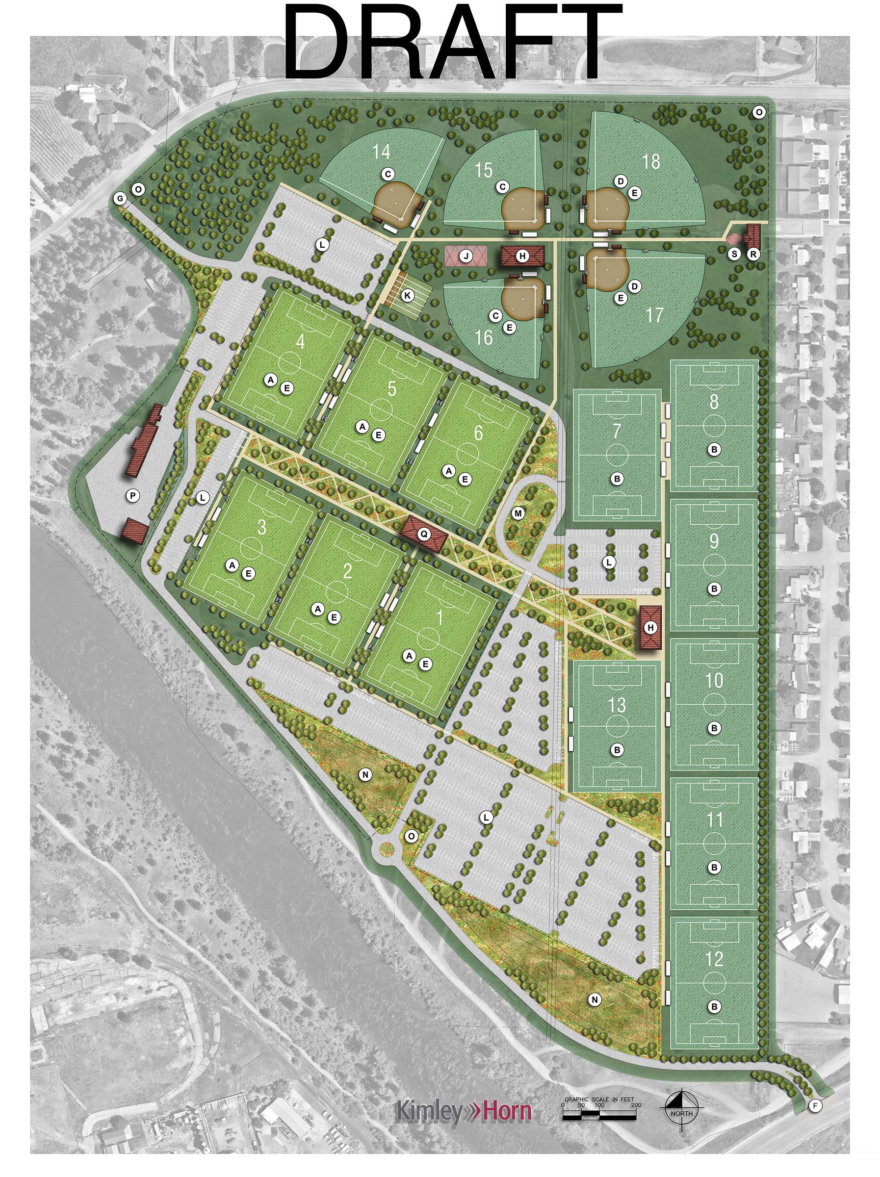
The draft master plan was developed by Sports Facilities Advisory, a consultant, in a joint effort by the City of Spokane Valley and Spokane County Parks, Recreation and Golf to create a long-term comprehensive plan for the facility.
A formal presentation will begin at 5:30 p.m. Sports Facilities Advisory will present draft recommendations in the plan, answer questions and collect input from attendees. Participants will be able to talk with representatives from Spokane County, City of Spokane Valley and the consultant, Sports Facilities Advisory. After collecting input, the consultant will finalize recommendations in the plan before sending it forward to elected officials.
Attendees may want to review and/or print the draft document in advance of the meeting. Due to the size of the document, hard copies will not be provided.
For more information:
Susan Joseph Nielsen
Economic Development Department
City of Spokane Valley
509-720-5028
snielsen@spokanevalleywa.gov